Hemp House L.A.

A Bio-Based Model for Rebuilding in Fire Prone Neighborhoods

Hemp House L.A. represents Kodama Studio’s submission to the 2025 California Rebuilds Competition sponsored by the Passive House Network. The competition aims to provide the L.A. community with a reference library of resilient passive house designs for rebuilding following the tragic 2025 L.A. wildfires. Kodama Studio proposed a bio-based hemp block solution that not only creates a fire resilient envelope but reduces embodied carbon and stimulates the local labor economy.

The wildfires that swept across L.A. and southern California in January of 2025 burned more than 57,000 acres destroying 18,000 homes and structures. As communities begin to rebuild it is imperative that we incorporate sustainable and resilient design strategies to prevent these tragedies from reoccurring.

Hemp House L.A. is a low-carbon fire resistant home designed for areas regularly affected by wildfires. The home is designed in a Spanish Modern style to honor the cultural heritage of Spanish architecture in southern California while taking advantage of modern design and high-performance construction methods.

The landscape design follows the principles of fire defensible space by creating three zones to reduce the risk of fire spreading to the house through either direct contact or airborne embers.

The first 0ft - 5ft is a non-combustible zone with no vegetation that acts as a fire break between the landscape and building envelope. An intermediate zone of 5ft - 10ft allows for small plants and shrubs, while an extended zone of 10ft - 30ft allows for taller shrubs and trees while maintaining a safe distance from the building envelope.

Local fire-resistant shrubs and trees such as saltbush, coast live oaks, and ponderosa pines are mixed with native California pollinator plantings such as lavender, goldenrod, and sage to create a vibrant and defensible landscape.

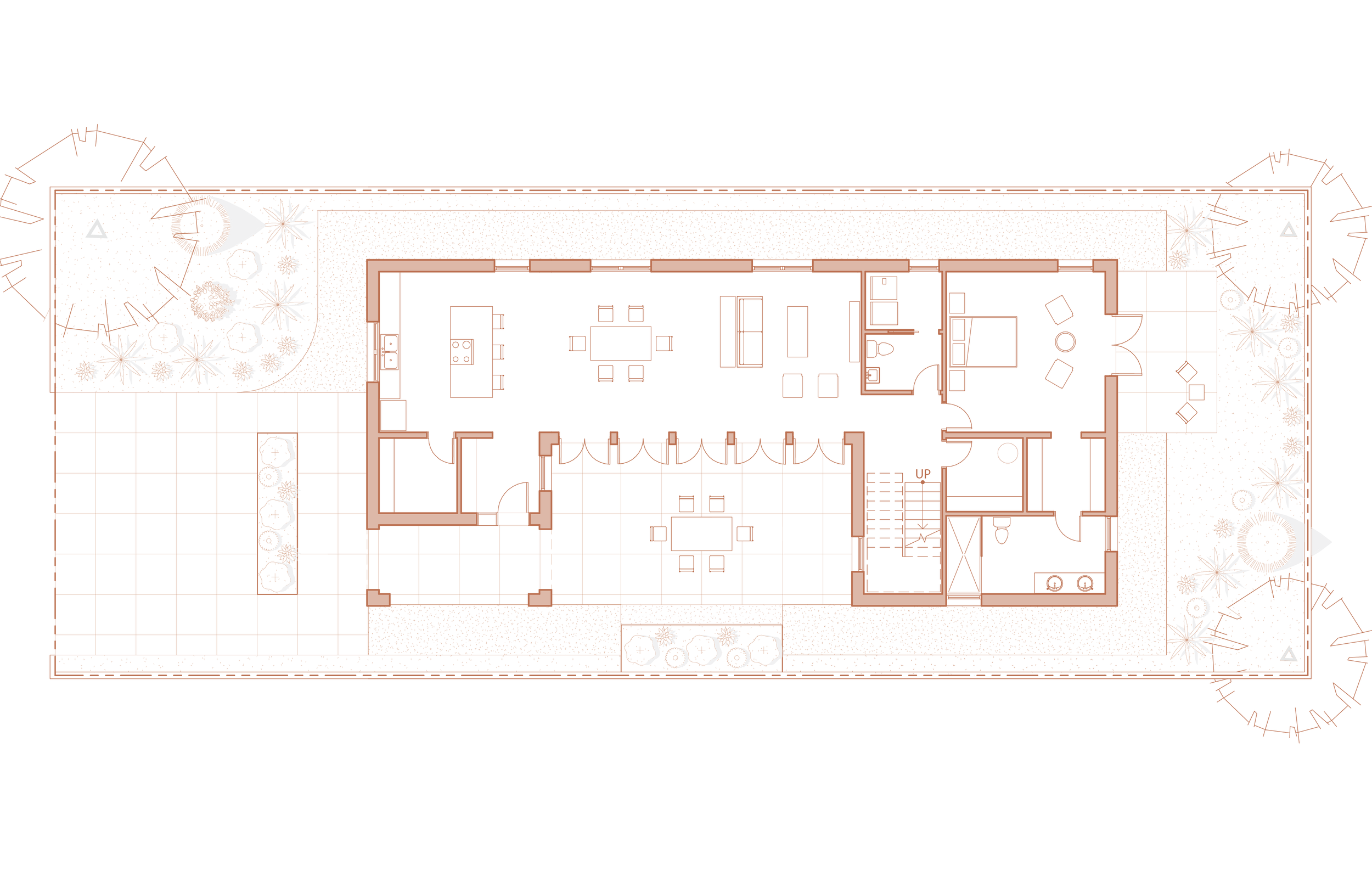
All major living spaces are located on the first floor to accommodate aging-in-place families and create a protected outdoor courtyard that acts as an extension of the living and dining spaces within. Additional bedrooms and/or offices are located on the second floor to provide flexibility as family size and needs evolve over time.

Uncovered parking is provided in lieu of a garage to maximize the ground floor living space with access to daylight and reduce hazardous fumes within the building envelope.

FIRST FLOOR PLAN

SECOND FLOOR PLAN

Hemp block construction is a promising new innovation that utilizes locally grown hemp and unskilled labor to reduce cost and increase replicability.

The bio-based fire resistant exterior envelope consists of load bearing hempcrete blocks, mineral fiber insulation, and a lime plaster finish that remain true to the Spanish culture of masonry construction while utilizing low-carbon materials and low-cost construction methods.

The hemp block’s hygroscopic properties automatically regulate indoor humidity while remaining resistant to mold, mildew, and pests.

Thermal resistance is provided by the hemp blocks themselves along with a 1-inch layer of continuous mineral fiber insulation at all exterior walls and an 8-inch layer of mineral fiber insulation at the roof.

Triple pane fiberglass windows and doors set deep within the exterior wall provide increased fire resistance while allowing for ample daylight, thermal comfort,  and views to the exterior.

A vapor permeable fluid-applied weather barrier on the hemp block walls along with a modified bitumen roofing membrane create an air and water tight building envelope.

The high-performance envelope, low heating demand, and low cooling demand result in a predicted EUI of 11 kBtu/sf/yr which meets the Passive House Plus level with only a 6.4 kW solar PV array. The selected bio-based materials result in a 53% embodied carbon reduction compared to a typical CMU masonry house. 

The result is a low-carbon home that is highly resilient to the extreme climate events experienced throughout southern California.